| MLS # | 838775 |
| निर्माण वर्ष | 1925 |
| कर (प्रति वर्ष) | $7,137 |
| ईंधन प्रकार | पेट्रोल तेल / शिलारस Oil |
| एयर कंडीशनिंग | दीवार एयर कंडीशनिंग Wall Unit AC |
| बेसमेंट | पूरा तहखाने Full basement |
| बस | बस Q08, Q41 के लिए 0 मिनट |
| बस Q112, Q24 के लिए 5 मिनट | |
| बस Q10, QM18 के लिए 7 मिनट | |
| बस Q09 के लिए 9 मिनट | |
| बस X64 के लिए 10 मिनट | |
| रेलवे स्टेशन | Jamaica रेलवे स्टेशन के लिए 0.8 मील |
| Kew Gardens रेलवे स्टेशन के लिए 1.4 मील | |
![]() |
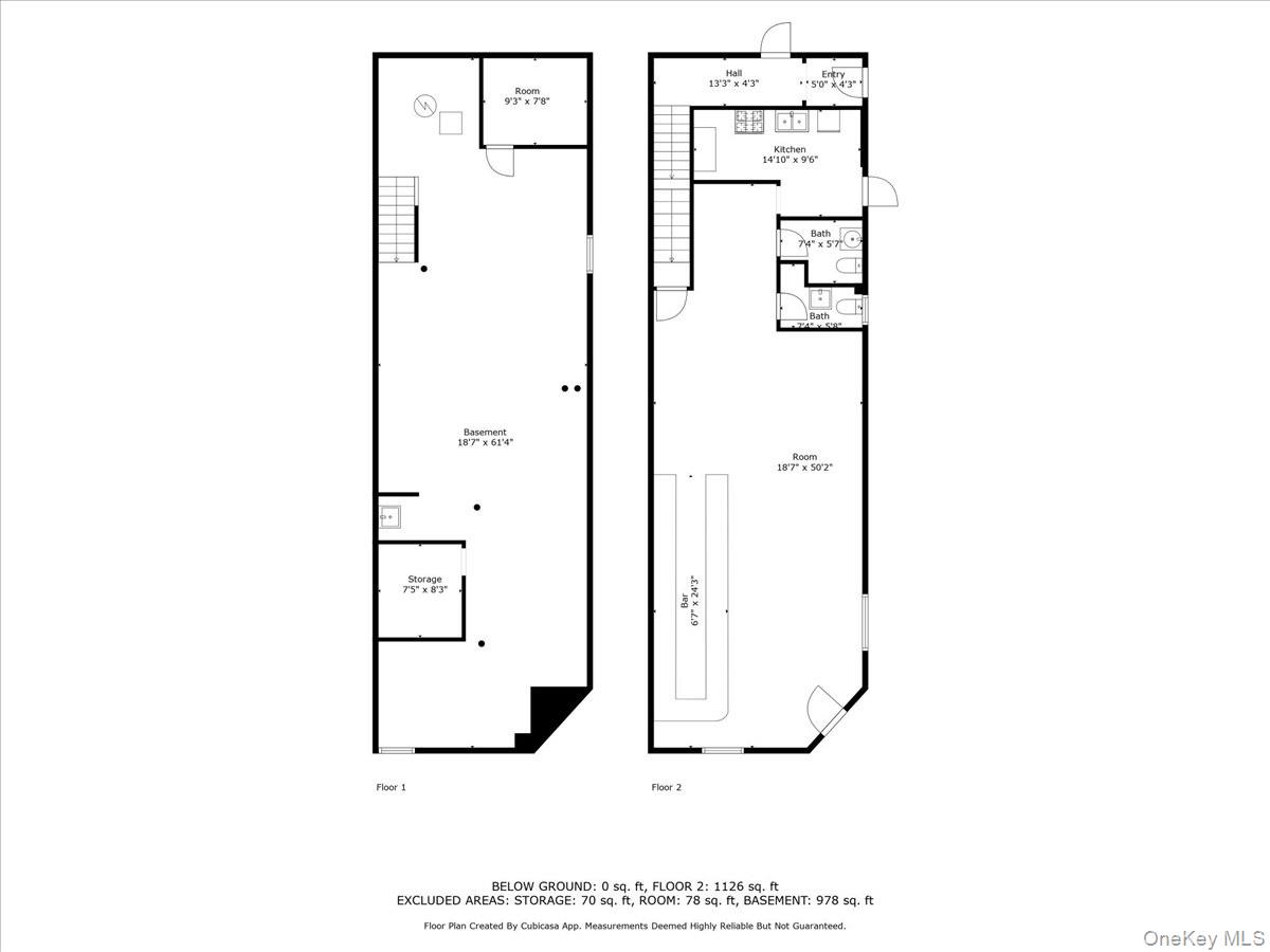
एक बहुपरकारी, मिश्रित उपयोग का व्यावसायिक स्थान बाजार में पेश है, जो 20x93.25 कोने के भूखंड पर स्थित है। इस संपत्ति का भवन आकार 20x64 है और कुल आंतरिक क्षेत्रफल 2,560 स्क्वायर फीट है, जो विभिन्न उपयोगों के लिए एक रोमांचक अवसर प्रदान करता है। पहली मंजिल का पूर्व में एक बार के रूप में उपयोग किया जाता था और इसमें पीछे एक छोटा रसोईघर और दो बाथरूम शामिल हैं। यह स्थान डुप्लेक्स है जिसमें एक पूर्ण बेसमेंट है, जिसमें आसान पहुंच के लिए दो निकलने के बिंदु और अतिरिक्त संभावनाएं हैं।
दूसरी मंजिल पर, आपको दो अलग-अलग अपार्टमेंट मिलेंगे। पहला एक एक-बेडरूम अपार्टमेंट है, जिसे खाली दिया जा सकता है, और दूसरा एक दो-बेडरूम अपार्टमेंट है, जो संभवतः भरा हुआ दिया जाएगा। यह व्यवस्था अच्छे आय के संभावनाएं या लचीली आवास व्यवस्था प्रदान करती है।
यह संपत्ति R6B/C2-3 जोन में है, जो व्यावसायिक और आवासीय उपयोगों की एक विस्तृत श्रृंखला की अनुमति देती है। इसमें दो संलग्न गैरेज भी शामिल हैं, जो अतिरिक्त किराए के लिए आदर्श हैं। $7,137 के कम करों के साथ, यह स्थान एक असाधारण निवेश है जिसमें अधिकतम आवासीय क्षेत्रफल क्षमता 3,730 है। इस प्रमुख अचल संपत्ति के अवसर को न चूकें, जिसमें अनंत संभावनाएं हैं!
Introducing a versatile, mixed-use commercial space on the market, located on a 20x93.25 corner lot.
This property, with a building size of 20x64 and a total interior square footage of 2,560, offers an exciting opportunity for various uses. The first floor was previously used as a bar and includes two bathrooms and a small kitchen at the back. The space is duplexed with a full basement, featuring two points of egress for easy access and additional potential.
On the second floor, you'll find two separate apartments. The first is a one-bedroom apartment, which may be delivered vacant, and the second is a two-bedroom apartment, likely delivered occupied. This setup offers great income potential or flexible living arrangements.
This property is zoned R6B/C2-3, allowing for a wide range of commercial and residential uses. It also includes two attached garages, perfect for generating additional rental income. With low taxes of $7,137, this space is an exceptional investment with maximum residential square footage potential of 3,730. Don't miss the chance to own this prime piece of real estate with endless possibilities!
This information is not verified for authenticity or accuracy and is not guaranteed and may not reflect all real estate activity in the market. Listing courtesy of Keller Williams Realty Liberty © 2026







