| ID # | 941295 |
| विवरण | 2 परिवार का घर, गराज, वातानुकूलन, भूमि का आकार: 0.14 एकड़, भवन में 3 घर DOM: 102 दिन |
| निर्माण वर्ष | 1931 |
| कर (प्रति वर्ष) | $14,625 |
| एयर कंडीशनिंग | दीवार एयर कंडीशनिंग Wall Unit AC |
| बेसमेंट | पूरा तहखाने Full basement |
![]() |
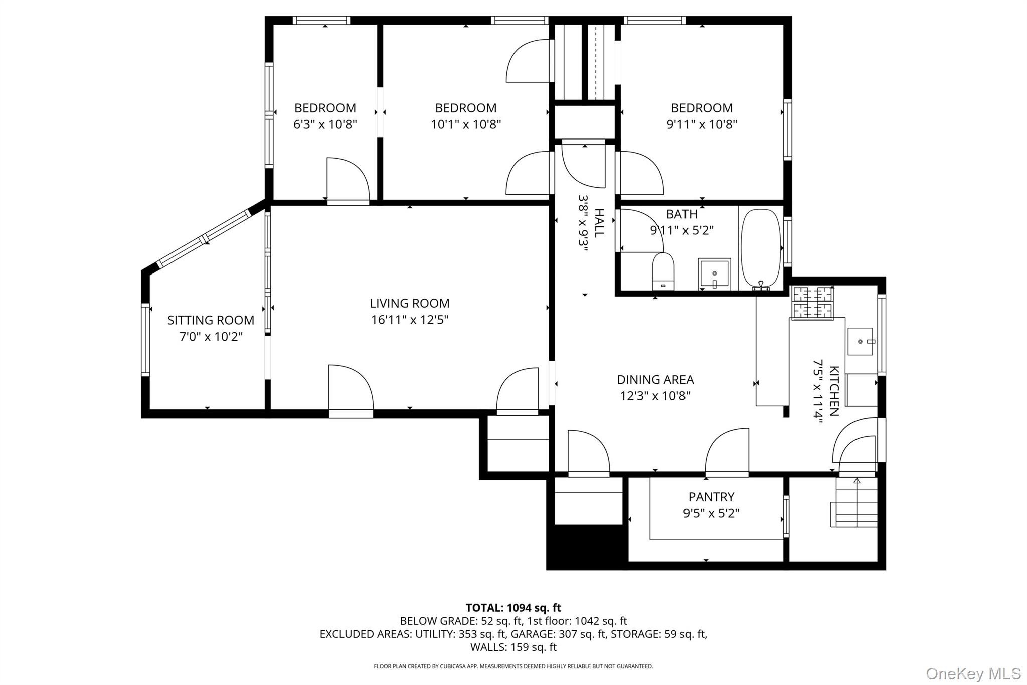
सफ़र्न के दिल में इस आकर्षक और बहुपरकारी दो-परिवार के घर का मालिक बनने का अद्भुत अवसर! गुड समैरिटन अस्पताल, सुंदर सफ़र्न पुस्तकालय, और सभी जीवंत डाउनटाउन सफ़र्न की सुविधाओं - ट्रेन स्टेशन, मूवी थियेटर, और शानदार रेस्तरां के चयन से कुछ ही पलों की दूरी पर स्थित है। दीर्घकालिक, स्थापित किरायेदार पहले से ही हैं, जो इसे एक शानदार निवेश अवसर बनाते हैं। अपार्टमेंट #1 में एक आरामदायक 1-बेडरूम का लेआउट है जिसमें एक रसोई, लिविंग रूम, और पूरा बाथरूम है। अपार्टमेंट #2 एक विशाल 3-बेडरूम यूनिट है जिसमें एक बड़ा लिविंग रूम, रसोई, और पूरा बाथरूम है, साथ ही पूर्ण बेसमेंट का विशेष उपयोग - जो प्रचुर संग्रहण या अतिरिक्त कार्यक्षमता का संभावित स्थान प्रदान करता है।
इस संपत्ति में एक 2-कार का डिटाच्ड गैरेज और एक आरामदायक स्टूडियो स्पेस भी शामिल है, जिसे वर्षों तक एक दर्जी की दुकान के रूप में उपयोग किया गया था, जिसमें अपना पूरा बाथरूम और किचनट है - एक कार्यशाला, घरेलू कार्यालय, या रचनात्मक स्थान के लिए आदर्श।
यह अद्वितीय संपत्ति प्रमुख स्थान पर अच्छे आय के संभावनाएं प्रदान करती है। इस दुर्लभ अवसर को न चूकें!
Amazing opportunity to own this charming and versatile two-family home in the heart of Suffern! Ideally situated just moments from Good Samaritan Hospital, the beautiful Suffern Library, and all that vibrant downtown Suffern offers—train station, movie theater, and an excellent selection of restaurants. Long-term, established tenants are already in place, making this a fantastic investment opportunity. Apartment #1 features a comfortable 1-bedroom layout with a kitchen, living room, and full bath. Apartment #2 is a spacious 3-bedroom unit offering a large living room, kitchen, and full bath, plus exclusive use of the full basement—providing abundant storage or potential for additional functionality.
The property also includes a 2-car detached garage and a cozy studio space, formerly used for years as a seamstress shop, complete with its own full bath and kitchenette—ideal for a workshop, home office, or creative space.
This unique property offers great income potential in a prime location. Don’t miss this rare opportunity!
This information is not verified for authenticity or accuracy and is not guaranteed and may not reflect all real estate activity in the market. Listing courtesy of Howard Hanna Rand Realty © 2026







