| ID # | 932740 |
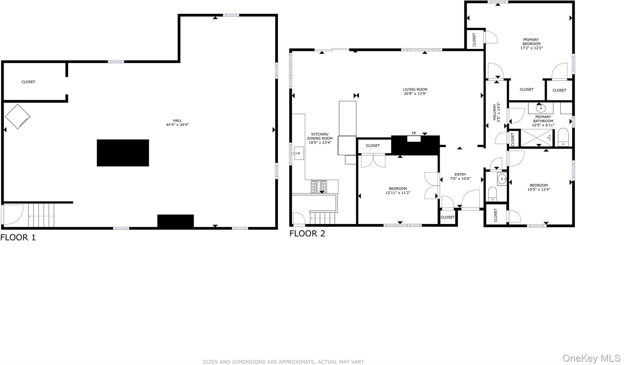
| विवरण | 2 शयनकक्ष, 1 स्नानघर, 1 आधा स्नानघर, बर्तन साफ़ करने वाला, धोने की मशीन, सुखाने वाला यंत्र, गराज, भूमि का आकार: 1 एकड़, आंतरिक वर्ग फुट : 1507 ft2, 140m2 DOM: -14 दिन |
| निर्माण वर्ष | 1950 |
| कर (प्रति वर्ष) | $11,433 |
| ईंधन प्रकार | पेट्रोल तेल / शिलारस Oil |
| गर्मी का प्रकार | गर्म पानी Hot water |
| गराज | संलग्न गैरेज Attached |
![]() |
यह खूबसूरती से अपडेट किया गया 2-बेडरूम रंच 3-बेडरूम की तरह लगता है और एक प्रमुख स्थान में आसान एकल-स्तरीय जीवन प्रदान करता है। घर में एक पूरा बाथरूम और एक पाउडर रूम है, और एक पूरी तरह से नवीनीकरण किया गया रसोईघर है जो आधुनिक फिनिश, नए उपकरण और एक उज्ज्वल, खुला लेआउट दिखाता है। एक अतिरिक्त कमरा घर के कार्यालय या अतिथि कक्ष के लिए आदर्श लचीला स्थान प्रदान करता है। निचला स्तर खत्म करने के लिए उत्कृष्ट संभावनाएं प्रदान करता है - अतिरिक्त रहने या मनोरंजन क्षेत्र के लिए बिल्कुल सही। इसमें एक नए इलेक्ट्रिक वाशर और ड्रायर के साथ एक लॉंड्री क्षेत्र भी है। एक सुंदर 1-एकड़ भूखंड पर स्थित, जिसमें एक विस्तृत, समतल यार्ड है, यह घर प्रकृति प्रेमियों के लिए स्वर्ग है! प्रत्येक सोमरस स्कूल, खरीदारी और स्थानीय सुविधाओं से केवल कुछ मिनटों की दूरी पर, यह एक शांत वातावरण में आराम और सुविधा का आनंद लेने का एक शानदार अवसर है।
This beautifully updated 2-bedroom ranch lives like a 3-bedroom and offers easy single-level living in a prime location. The home features one full bath and a powder room, along with a completely renovated kitchen that showcases modern finishes, new appliances, and a bright, open layout. An additional room provides flexible space ideal for a home office or guest room. The lower level offers excellent potential for finishing—perfect for additional living or recreational space. Also features a laundry area with a new electric washer and dryer. Set on a picturesque 1-acre lot with an expansive, level yard, this home is a nature lover’s paradise! Just minutes from every Somers' school, shopping, and local amenities, this is a wonderful opportunity to enjoy comfort and convenience in a peaceful setting. © 2025 OneKey™ MLS, LLC







