| ID # | RLS20065222 |
| विवरण | 1 शयनकक्ष, 1 स्नानघर, आंतरिक वर्ग फुट : 700 ft2, 65m2, भवन में 36 घर DOM: 64 दिन |
| निर्माण वर्ष | 1900 |
| रखरखाव शुल्क | $1,144 |
| भूमिगत रेल | मेट्रो 2, 3 के लिए 1 मिनट |
| मेट्रो B, C के लिए 6 मिनट | |
![]() |
- केवल नकद, कोई बैंक ऋण नहीं
- कोई बंधक नहीं
- आय सीमाओं के साथ HDFC सहकारी
अपने घर को केंद्रीय पार्क से केवल एक ब्लॉक दूर इस विशाल एक-बेडरूम सहकारी में बनाएं, जो दक्षिण हार्लेम HDFC भवन में है। आय सीमाएं लागू होती हैं।
165% AMI के घरेलू आय प्रतिबंध लागू होते हैं:
1 व्यक्ति = $154,110
2 लोग = $176,220
3 लोग = $198,165
4 लोग = $220,110
5 लोग = $237,765
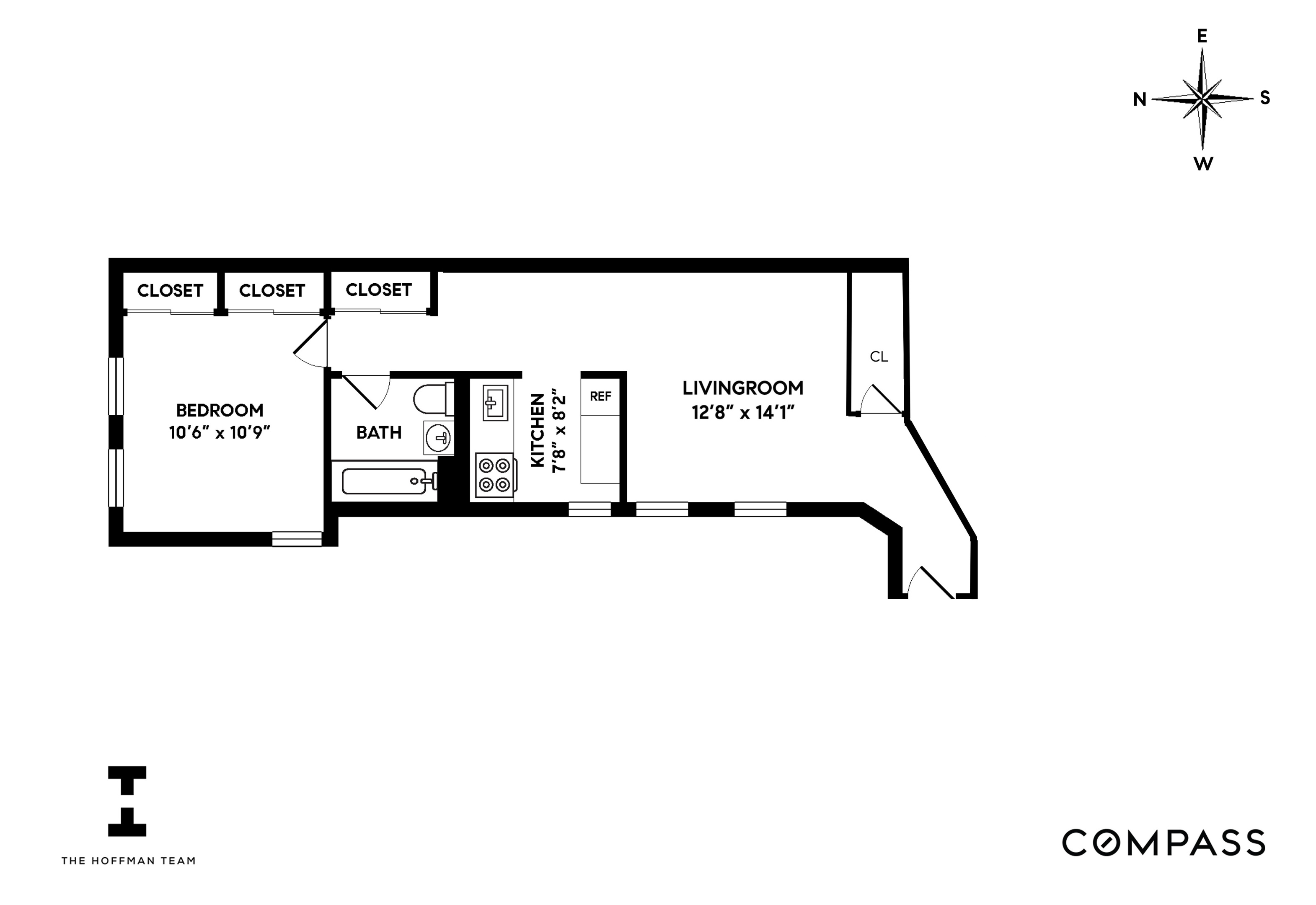
इस प्रीवार घर के अंदर, आपको हार्डवुड लकड़ी के फर्श, ऊंची छतें, उत्कृष्ट भंडारण और तीन दिशाओं में बड़े खिड़कियां मिलेंगी। एक फोयर एक बड़े रहने वाले कमरे की ओर खुलता है, जो बैठने और खाने के क्षेत्रों के लिए एक उदार फुटप्रिंट प्रदान करता है, साथ ही एक और विशाल अलमारी भी है। आगे, आपको एक अतिरिक्त चौड़ी हॉलवे मिलेगी, जो एक होम ऑफिस क्षेत्र या कैफे टेबल के लिए उत्तम है। खिड़की वाला रसोईघर पर्याप्त कैबिनेट और काउंटर स्पेस के साथ, साथ ही एक पूर्ण आकार की रेंज और फ्रिज प्रदान करता है। एक बाथरूम जिसमें टब/शावर है, इस दक्षिण हार्लेम घर को पूरा करता है।
11-15 सेंट निकोलस एवेनेュー में एक लाइव-इन सुपरिटेंडेंट और केंद्रीय पार्क के ठीक ऊपर एक उत्कृष्ट दक्षिण हार्लेम स्थान है। यहाँ आपको शानदार नॉर्थ वुड्स, हार्लेम मीर और पूर्व लास्कर रिंक और पूल, जिसे अब हार्लेम मीर सेंटर कहा जाता है, की अद्भुत पहुंच का आनंद मिलेगा, जो वर्तमान में रोमांचक $150 मिलियन नवीनीकरण के अधीन है। हार्लेम के मनचाहे भोजन और नाइटलाइफ़ स्थल आसानी से पहुंच में हैं, और यह केंद्रीय पड़ोस 125वीं स्ट्रीट, म्यूजियम माइल और अपर ईस्ट और वेस्ट साइड्स की खरीदारी और सांस्कृतिक पेशकशों के लिए शानदार निकटता प्रदान करता है। परिवहन आसान है, क्योंकि 2/3 ट्रेनें एक ब्लॉक दूर हैं, साथ ही B और C ट्रेनें, उत्कृष्ट बस सेवा और सिटीबाइक सभी पास में हैं।
- Cash only, no bank lending
- No mortgage
- HDFC co-op with income restrictions
Make your home just one block from Central Park in this spacious one-bedroom co-op in a South Harlem HDFC building. Income restrictions apply.
Household income restrictions of 165% AMI apply:
1 Person = $154,110
2 People = $176,220
3 People = $198,165
4 People = $220,110
5 People = $237,765
Inside this prewar home, you'll find hardwood floors, tall ceilings, excellent storage and oversized windows on three exposures. A foyer opens to a large living room offering a generous footprint for seating and dining areas alongside another roomy closet. Ahead, you'll find an extra wide hallway perfect for a home office area or café table. The windowed kitchen features ample cabinet and counter space, plus a full-size range and refrigerator. A windowed bathroom with a tub/shower completes this South Harlem home.
11-15 St. Nicholas Avenue offers a live-in superintendent and an outstanding South Harlem location directly above Central Park. Here you'll enjoy front-row access to the breathtaking North Woods, Harlem Meer and the former Lasker Rink and Pool, now the Harlem Meer Center, currently undergoing an exciting $150 million renovation. Harlem's coveted dining and nightlife venues are within easy reach, and this central neighborhood offers fantastic proximity to the shopping and cultural offerings of 125th Street, Museum Mile and the Upper East and West Sides. Transportation is effortless with 2/3 trains a block away, plus B and C trains, excellent bus service and CitiBikes all nearby.
This information is not verified for authenticity or accuracy and is not guaranteed and may not reflect all real estate activity in the market. © 2026 The Real Estate Board of New York, Inc., All rights reserved.






