| ID # | RLS20055846 |
| विवरण | Seward Park 3 शयनकक्ष, 3 स्नानघर, धोने की मशीन, सुखाने वाला यंत्र, गराज, आंतरिक वर्ग फुट : 2100 ft2, 195m2, भवन में 893 घर DOM: 164 दिन |
| निर्माण वर्ष | 1960 |
| रखरखाव शुल्क | $2,858 |
| भूमिगत रेल | मेट्रो F के लिए 2 मिनट |
| मेट्रो J, M, Z के लिए 6 मिनट | |
| मेट्रो B, D के लिए 8 मिनट | |
![]() |
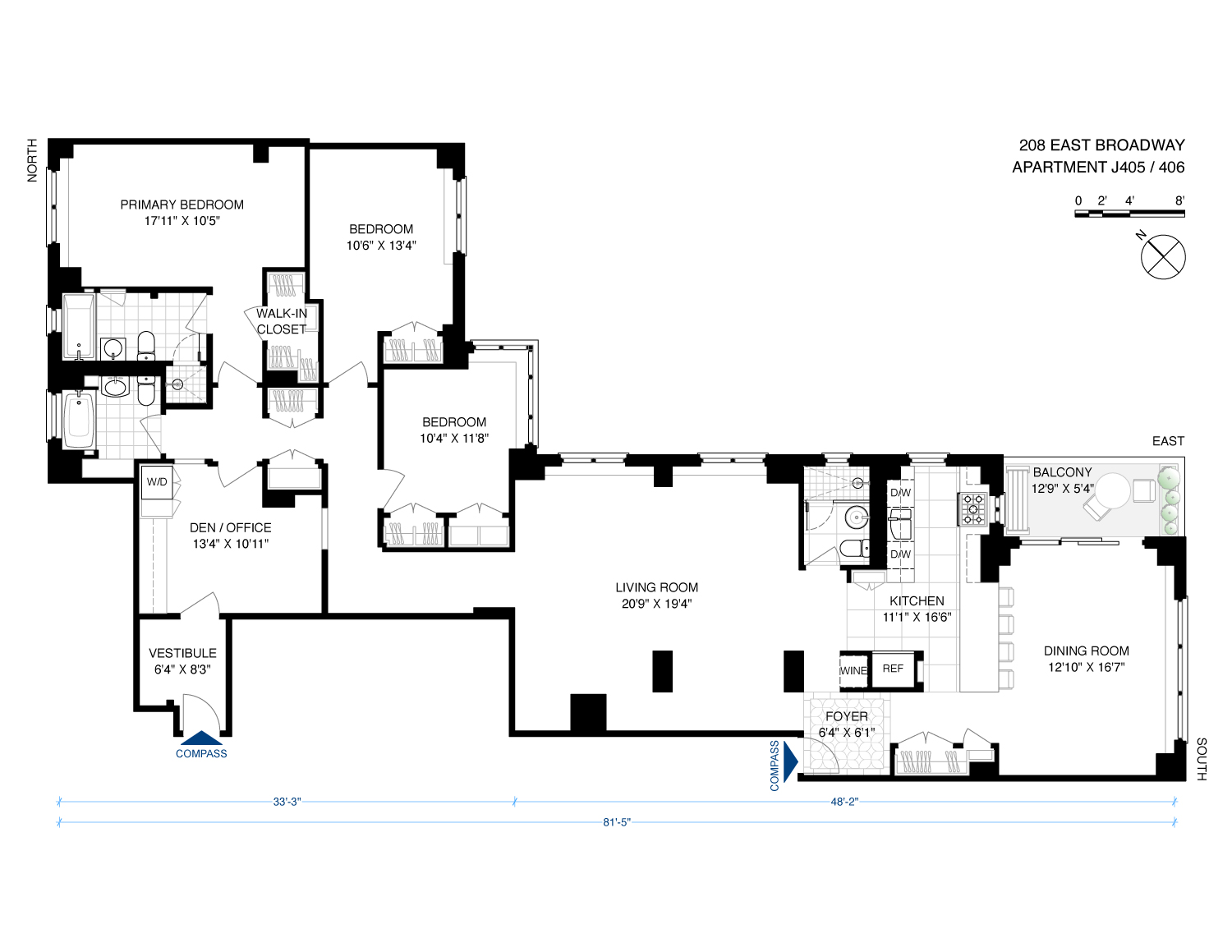
2100 वर्ग फुट में फैला यह विशाल तीन-बेडरूम, तीन पूर्ण बाथरूम वाला निवास एक लचीले चौथे कमरे के साथ आता है—जो होम ऑफिस, डेन, या मेहमानों के लिए आदर्श है। घने, हरे-भरे पेड़ों से घिरी एक निजी बालकनी सुबह की कॉफी, शाम की थंडक, और प्रकृति के साथ एक शांत संबंध का निमंत्रण देती है, जो शहर की गति से मीलों दूर महसूस होती है। इन-यूनिट वॉशर और ड्रायर और केवल $2,858 की असाधारण कम मासिक रखरखाव के साथ, यह घर विलासिता और सहज निवासिता का संतुलन बनाता है।
पहुंचने पर, एक स्वागत योग्य औपचारिक प्रवेश फोयर एक सुरुचिपूर्ण टोन सेट करता है और वास्तव में आगमन का अनुभव प्रदान करता है। एक दूसरा, कीचड़-कमरा शैली का प्रवेश द्वार व्यावहारिक रोज़मर्रा की सुविधा प्रदान करता है—बच्चों की गाड़ी, खेल का सामान, या आसानी से किराना उतारने के लिए सही।
दक्षिणी विंग मनोरंजन और रोज़मर्रा की सभा के लिए समर्पित है—1000 वर्ग फुट का खुला अवधारणा रहने का, खाने का, और रसोई का स्थान। रसोई स्वाभाविक रूप से सामाजिक क्षेत्र में बहती है, जिसमें एक अंतर्निहित वाइन रेफ्रिजरेटर और प्रीमियम उपकरण होते हैं जो मेजबानी को सहज बनाते हैं। शेफ की रसोई में GE मोनोग्राम, GE प्रोफाइल, बॉश, ज़ेफिर, और किचनएड उपकरण शामिल हैं, जिसमें एक पाँच-बर्नर चूल्हा, दो डिशवॉशर, वाइन कूलर, और डबल सिंक है, जो प्रदर्शन को शाश्वत डिज़ाइन से जोड़ती है। रोशनी खिड़कियों से धीरे-धीरे छनकर आती है, एक गर्म, स्वागत करने वाला वातावरण बनाती है जो दिन से रात में बिना किसी बाधा के परिवर्तित होती है।
उत्तरी विंग, 1100 वर्ग फुट से अधिक, विश्राम और निजीता के लिए डिज़ाइन किया गया है। एक शांत प्रमुख सूट दो अतिरिक्त बेडरूम और एक बहुपरकारी बोनस कमरे द्वारा पूरक है, जो जिम, खेलने के क्षेत्र, या अतिरिक्त काम करने की जगह के रूप में कार्य कर सकता है। सभी तीन बाथरूम में खिड़कियाँ हैं, जो प्राकृतिक प्रकाश और वेंटिलेशन लाती हैं—यह न्यूयॉर्क के अपार्टमेंट्स में एक दुर्लभ विशेषता है।
सिवार्ड पार्क सहकारी के निवासी कई विचारशील सुविधाओं का आनंद लेते हैं: 24 घंटे की उपस्थित लॉबी, फिटनेस सेंटर, दो निजी गेटेड पार्क, बच्चों का खेल कमरा, सामुदायिक कक्ष, लॉन्ड्री सुविधाएँ, और स्थलों पर प्रबंधन और रखरखाव। F ट्रेन के पास ईस्ट ब्रॉडवे और डिलैंसी/एसेक्स हब के निकट आदर्श रूप से स्थित, यह घर एसेक्स क्रॉसिंग, ट्रेडर जो's, टारगेट, लिडल, रिगल सिनेमा, और एसेक्स मार्केट के कुछ ही क्षणों की दूरी पर है, साथ ही कैफे, रेस्तरां, और गैलरी का एक जीवंत मिश्रण जो डाउनटाउन जीवन को परिभाषित करता है।
Spanning over 2,100 square feet, this expansive three-bedroom, three full-bathroom residence also includes a flexible fourth room—ideal as a home office, den, or guest space. A private balcony framed by lush, leafy trees invites morning coffee, evening breezes, and a quiet connection to nature that feels miles from the city’s pace. With an in-unit washer and dryer and an exceptionally low monthly maintenance of $2,858, the home balances luxury with effortless livability.
Upon arrival, a gracious formal entry foyer sets an elegant tone and provides a true sense of arrival. A second, mud-room style entrance offers practical everyday convenience—perfect for strollers, sports gear, or unloading groceries with ease.
The southern wing is devoted to entertaining and everyday gathering—over 1,000 square feet of open-concept living, dining, and kitchen space. The kitchen flows naturally into the social area, anchored by a built-in wine refrigerator and premium appliances that make hosting effortless. The chef’s kitchen is outfitted with GE Monogram, GE Profile, Bosch, Zephyr, and KitchenAid appliances, including a five-burner stove, two dishwashers, wine cooler, and double sink, marrying performance with timeless design. Light filters gently through the windows, creating a warm, welcoming atmosphere that transitions seamlessly from day to night.
The northern wing, over 1,100 square feet, is designed for rest and privacy. A serene primary suite is complemented by two additional bedrooms and a versatile bonus room that can serve as a gym, play area, or additional workspace. All three bathrooms are windowed, bringing in natural light and ventilation—a rare feature in New York apartments.
Residents of the Seward Park Cooperative enjoy a range of thoughtful amenities: a 24-hour attended lobby, fitness center, two private gated parks, children’s playroom, community room, laundry facilities, and on-site management and maintenance. Ideally positioned near the F train at East Broadway and the Delancey/Essex hub with F, J, M, and Z lines, the home is moments from Essex Crossing, Trader Joe’s, Target, Lidl, Regal Cinemas, and Essex Market, as well as a vibrant mix of cafés, restaurants, and galleries that define downtown living.
This information is not verified for authenticity or accuracy and is not guaranteed and may not reflect all real estate activity in the market. © 2026 The Real Estate Board of New York, Inc., All rights reserved.







