| ID # | RLS20068231 |
| विवरण | STUDIO, भवन में 2 घर DOM: 63 दिन |
| निर्माण वर्ष | 1925 |
| बस | बस B7 के लिए 1 मिनट |
| बस BM1 के लिए 2 मिनट | |
| बस B82 के लिए 3 मिनट | |
| बस B46 के लिए 5 मिनट | |
| बस B41, Q35 के लिए 6 मिनट | |
| बस B9 के लिए 7 मिनट | |
| बस B103, B6, BM2 के लिए 9 मिनट | |
| रेलवे स्टेशन | Nostrand Avenue रेलवे स्टेशन के लिए 3.7 मील |
| East New York रेलवे स्टेशन के लिए 3.8 मील | |
![]() |
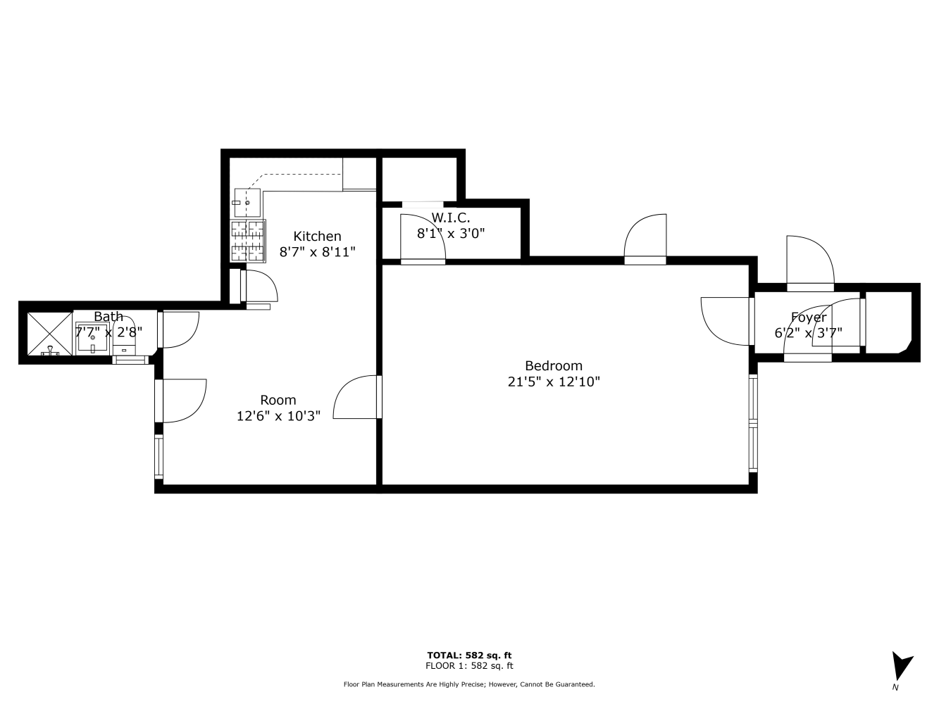
वाह, वाह, वाह! 4424 किंग्स हाइवे में आपका स्वागत है - एक शानदार, अनूठा, पूरी तरह से सुसज्जित 3 कमरों का स्टूडियो, जिसमें पूरा बाथरूम है। यह घर विलासिता, ज़ेन और आधुनिक शांति को सहज रूप से मिश्रित करता है। यह आपका सामान्य दो कमरों वाला स्टूडियो नहीं है!
क्यूरेटेड कला, सजावटी सामान और स्टाइलिश फर्नीचर के साथ विशेषज्ञता से डिजाइन किया गया, यह अपार्टमेंट एक आरामदायक लेकिन वैभवशाली वातावरण को बढ़ावा देता है। घर में एक प्यारी साइड एंट्रेंस है, जब आप प्रवेश करते हैं तो आपको एक ओपन कॉन्सेप्ट रूम मिलता है, जहाँ सोने का क्षेत्र और लिविंग रूम एक कला जियो बुकशेल्फ द्वारा चतुराई से विभाजित किया गया है, जो दोनों स्थानों को सहजता से अलग करता है। आधुनिक, स्टाइलिश रसोई, पूरी तरह से सुसज्जित और कार्यात्मक, इसका अपना डायनिंग एरिया है, जो मनोरंजन के लिए एकदम सही जगह है। आकर्षक बाथरूम समृद्ध सजावटी सामान और कार्यक्षमता के साथ पूरा है। पर्याप्त कोठरी जगह। किराए में गैस शामिल है। यह घर एक सच्ची कृति है, जो आपके रहने के अनुभव को ऊंचा करने के लिए तैयार है!
सुविधाओं की झलक:
पूरी तरह से सुसज्जित स्टूडियो
फर्निश्ड लिविंग रूम और डायनिंग रूम
1 पूरा बाथरूम
तेज हाई-स्पीड WI-FI
40 इंच का HDTV
HBO, Showtime, Netflix, YouTube और Hulu कनेक्शन उपलब्ध है।
इस्त्री और इस्त्री बोर्ड
ब लो-ड्रायर
पूर्ण रूप से सुसज्जित रसोई (कुकवेयर, टेबलवेयर, कॉफी मेकर, केटल, फ़िल्टर्ड पानी, आइस मेकर) प्रीमियम लिनन बहुत सारी प्राकृतिक रोशनी
हर कमरे में एयर कंडीशनिंग
सुविधाजनक रूप से 2 और 5 मेट्रो लाइनों के पास स्थित, फ्लैटबश जंक्शन रिटेल हब में कई दुकानें और रेस्तरां, टारगेट, होम गुड्स, स्टारबक्स, ब्रुकलीन कॉलेज के करीब, ब्रुकलीन सेंटर फॉर परफॉर्मिंग आर्ट्स और किंग्स प्लाज़ा शॉपिंग मॉल। सब कुछ आपके अंगुलियों के नोच पर। यह लंबे समय तक नहीं चलेगा। बस चाबी घुमाएं और अपनी व्यक्तिगत ओएसिस में प्रवेश करें!
फीस का खुलासा:
आवेदन शुल्क: $20/व्यक्ति 18 वर्ष से अधिक
पहले महीने का किराया
सुरक्षा जमा (वापसी योग्य): 1 महीने का किराया
यूटिलिटीज (बिजली):
WOW, WOW, WOW! Welcome to 4424 Kings Highway-a stunning, unique, fully furnished 3 room studio with full bathroom. This home seamlessly blends luxury, Zen, and modern tranquility. NOT YOUR TYPICAL COOKIE CUT 2 ROOM STUDIO!
Expertly designed with curated artwork, accent pieces, and stylish furniture, the apartment fosters a relaxing yet luxurious environment.
The home has a lovely side entrance, upon entering the you're greeted with an open concept room, the sleeping area and living room is cleverly divided by an art geo bookshelf, seamlessly dividing both spaces. The modern, stylish kitchen, fully stocked and functional, boasts it's very own dining area, perfect space for entertaining.
The charming bathroom is complete with rich accents and functionality. Ample closet space. Gas included in the rent.
This home is a true masterpiece, ready to elevate your living experience!"
Amenities at a glance:
Fully furnished studio
Furnished living room and dining room
1 full bathrooms
Fast high-speed WI-FI
40 inch HDTV with
HBO, Showtime, Netflix, YouTube, and Hulu connection available.
Iron and Ironing board
Blow-Dryer
Fully stocked kitchen (cookware, tableware, coffeemaker, kettle, filtered water, ice maker) Premium linens Lots of natural light
Air conditioning in every room
Conveniently located near the 2 and 5 subway lines, the Flatbush Junction Retail Hub with tons shops and restaurants, Target, Home goods, Starbucks, close to Brooklyn College, Brooklyn Center for Performing Arts and Kings Plaza Shopping Mall. Everything you need at your fingertips. Won't last long. Just turn the key and enter your personal oasis!
Disclosure of Fees:
Application Fee: $20/pp over 18 years
First Month's Rent
Security Deposit (Refundable): 1 Month Rent
Utilities (Electric):
This information is not verified for authenticity or accuracy and is not guaranteed and may not reflect all real estate activity in the market. © 2026 The Real Estate Board of New York, Inc., All rights reserved.







