| MLS # | 956362 |
| विवरण | 4 शयनकक्ष, 3 स्नानघर, गराज, भूमि का आकार: 0.13 एकड़, आंतरिक वर्ग फुट : 1386 ft2, 129m2 DOM: 42 दिन |
| निर्माण वर्ष | 1949 |
| कर (प्रति वर्ष) | $11,324 |
| ईंधन प्रकार | प्राकृतिक गैस Gas |
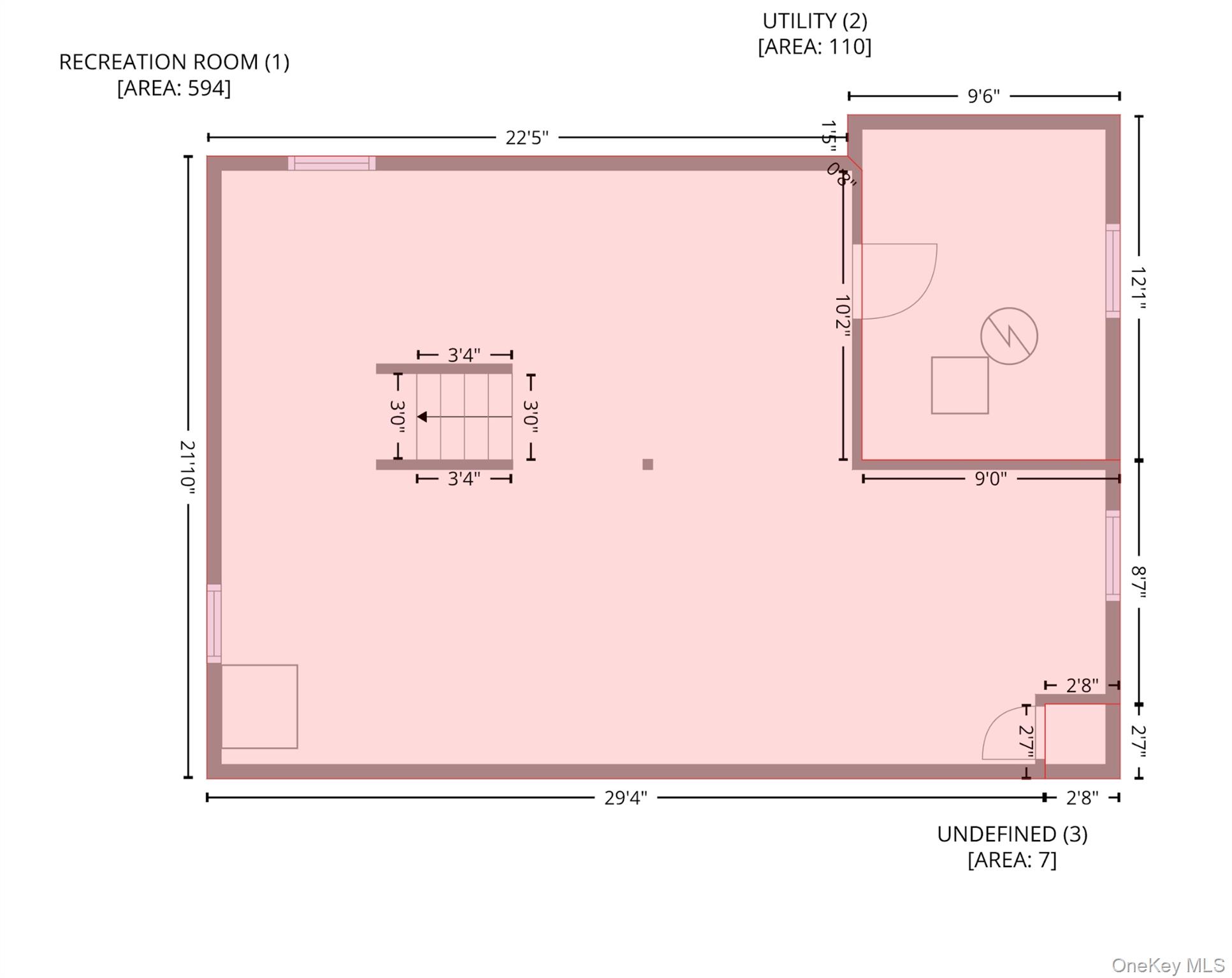
| बेसमेंट | पूरा तहखाने Full basement |
| रेलवे स्टेशन | रेलवे स्टेशन Merrick के लिए 1.4 मील |
| रेलवे स्टेशन Freeport के लिए 1.6 मील | |
![]() |
उत्तर मैरिक के दिल में खूबसूरती से नवीनीकृत एकल परिवार का घर, जो मेडोब्रुक पार्कवे के निकट स्थित है। इस विशाल निवास में 4 बड़े बेडरूम और 3 पूर्ण बाथरूम हैं, जिसमें एक प्राइमरी बेडरूम निजी एन-सुइट बाथ के साथ है। पूरे घर में हार्डवुड फर्श हैं, एक ब्रांड-न्यू रसोई है जिसमें स्टेनलेस स्टील के उपकरण हैं, और पूरे साल के आराम के लिए आधुनिक डक्टलेस HVAC है। पूरी तरह से तैयार किया गया बेसमेंट अतिरिक्त रहने या मनोरंजन के स्थान प्रदान करता है। बाहरी विशेषताओं में चिकने आधुनिक काले खिड़कियां, एक कार के लिए गैरेज, और एक नया स्थापित स्प्रिंकलर सिस्टम शामिल हैं। शैली, स्थान और आराम का एक सही मिश्रण—तुरंत प्रवेश के लिए तैयार और इसे मिस नहीं किया जा सकता!
Beautifully renovated one-family home in the heart of North Merrick, conveniently located just off the Meadowbrook Parkway. This spacious residence offers 4 generously sized bedrooms and 3 full bathrooms, including a primary bedroom with a private en-suite bath. Featuring hardwood floors throughout, a brand-new kitchen with stainless steel appliances, and modern ductless HVAC for year-round comfort. The fully finished basement provides additional living or recreational space. Exterior highlights include sleek modern black windows, a one-car garage, and a newly installed sprinkler system. A perfect blend of style, space, and convenience—move-in ready and not to be missed!
This information is not verified for authenticity or accuracy and is not guaranteed and may not reflect all real estate activity in the market. Listing courtesy of Fave Realty Inc © 2026







