| ID # | RLS20072236 |
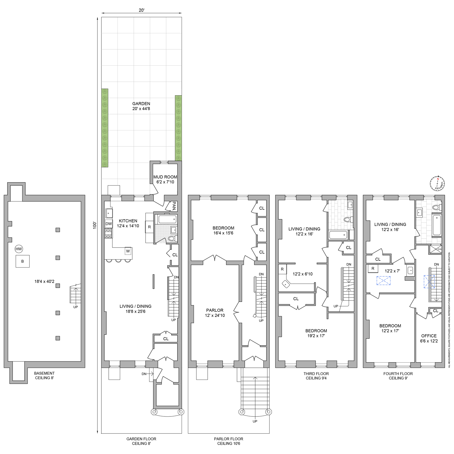
| विवरण | 6 शयनकक्ष, 3 स्नानघर, आंतरिक वर्ग फुट : 3600 ft2, 334m2 DOM: 342 दिन |
| निर्माण वर्ष | 1899 |
| कर (प्रति वर्ष) | $5,328 |
| बस | बस B15 के लिए 1 मिनट |
| बस B26, B52 के लिए 3 मिनट | |
| बस B43 के लिए 5 मिनट | |
| बस B46 के लिए 7 मिनट | |
| बस B25, B38 के लिए 8 मिनट | |
| भूमिगत रेल | मेट्रो C के लिए 9 मिनट |
| रेलवे स्टेशन | Nostrand Avenue रेलवे स्टेशन के लिए 0.8 मील |
| East New York रेलवे स्टेशन के लिए 1.9 मील | |
![]() |
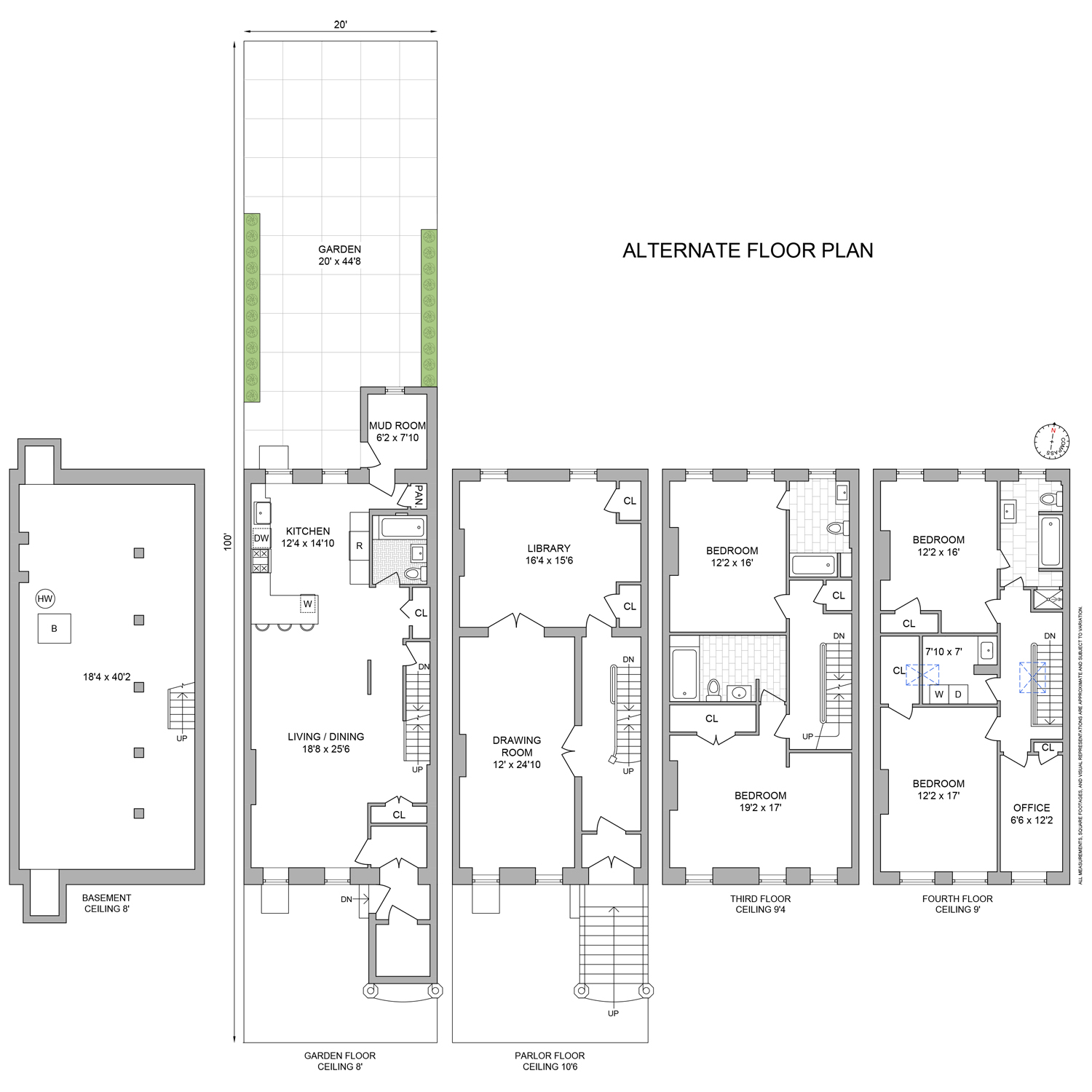
यह असाधारण टाउनहाउस 621 पुटनम एवेन्यू पर स्थित है, जो एक सच्ची रत्न है। यह घर एक सुंदर पेड़-लाइंड टाउनहाउस ब्लॉक पर है, जो ऐतिहासिक और जल्द ही नवीकरण होने वाले मार्कस गार्वे आर्मरी के सामने है। यह शानदार ब्राउनस्टोन 3,600 वर्ग फीट में फैला हुआ है और इसके कई मूल विवरण बरकरार हैं। 20 फीट चौड़ा यह घर आपके सपनों के घर को बनाने का एक सही अवसर है। वर्तमान में, घर में चार बेडरूम और तीन पूर्ण बाथरूम हैं, लेकिन वैकल्पिक मंजिल योजना के अनुसार, इस स्थान को अनुकूलित करने की संभावनाएँ अंतहीन हैं।
गार्डन स्तर का नवीनीकरण किया गया है जिसमें एक विशाल लिविंग/डाइनिंग क्षेत्र है जिसमें एक ओपन किचन है जो विशाल बगीचे से सीधे जुड़ता है। इस मंजिल पर एक नवीनीकृत पूर्ण बाथरूम भी है। पार्लर स्तर में ऊँची छतें, एक फायरप्लेस, मूल पार्केट फर्श और खिड़की और दरवाजों के चारों ओर सुंदर लकड़ी का काम है। आकर्षक फ्रेंच दरवाजे और ट्रांसम के साथ भव्यता से जगह को आगे और पीछे के कमरों में बांटते हैं।
ऊपरी दो मंजिलों में ऊँची छतें, तस्वीर रेल मोल्डिंग और हेरिंगबोन और मोज़ेक पार्केट फर्श का मिश्रण है। बड़े आकार की खिड़कियाँ चमकदार, खुशहाल कमरे बनाती हैं जिनमें सजावटी फायरप्लेस, आर्च दरवाजे और तस्वीर रेल मोल्डिंग हैं। प्रत्येक मंजिल पर बाथरूम का नवीनीकरण किया गया है।
स्टुइवेसेंट हाइट्स के बगल में आदर्श स्थान, और कई अद्भुत रेस्तरां और बार के करीब। एक छोर पर फ्रॉग है, जिसमें वातावरण कोष्ठक क्षेत्र है और वाइन का बेहतरीन चयन है। दूसरी दिशा में, आप सरागिना पर बेहतरीन कोयला ओवन पिज्जा और पीचेस पर स्वादिष्ट आराम का खाना पा सकते हैं। जब आप यहाँ आएं, तो एक कॉफी लें और ब्लैक स्टार विनाइल पर किताबों और रिकॉर्ड्स का चयन देखें। यदि आप एक्सप्रेस ए ट्रेन पकड़ते हैं तो आप यहाँ तुरंत पहुँच जाएंगे।
This exceptional townhouse located at 621 Putnam Ave is a true gem. The house is situated on a beautiful tree-lined townhouse block, across from the historic, and soon-to-be revamped, Marcus Garvey Armory. This stunning brownstone spans 3,600 square feet with many of its original details intact. The 20’ wide house is a perfect opportunity to create your dream home. Currently, the house has four bedrooms and three full bathrooms but, as seen on the alternate floor plan, the possibilities to customize the space are endless.
The garden level has been renovated featuring a spacious living/dining with an open kitchen that has direct access to the enormous backyard. It also has a renovated full bathroom on this floor. The parlor level has high ceilings, a fireplace, original parquet floors, and beautiful woodwork surrounding the windows and doorways. Handsome french doors with a transom elegantly divide the space into front and back rooms.
The top two floors have high ceilings, picture rail moldings, and a mix of herringbone and mosaic parquet floors. Oversized windows create bright, cheery rooms with decorative fireplaces, arched doorways, and picture rail moldings. The bathrooms on each floor have been remodeled.
Ideal location adjacent to Stuyvesant Heights, and close to many amazing restaurants and bars. Frog, at one end of the block, has ambient outdoor seating and a great selection of wines. In the other direction, you can find the best coal oven pizza at Saraghina and delicious comfort food at Peaches. While you’re visiting, grab a coffee and browse the selection of books and records at Black Star Vinyl. You’ll be here in a flash if you catch the express A train.
This information is not verified for authenticity or accuracy and is not guaranteed and may not reflect all real estate activity in the market. © 2026 The Real Estate Board of New York, Inc., All rights reserved.







