स्योसेट Syosset, NY
मकान HOUSE
पता: ‎51 Willis Avenue
पिन कोड: 11791
5 शयनकक्ष, 3 स्नानघर, 2200ft2
分享到
$14,88,000
₹13,03,00,000
MLS # 966235
हिन्दी Hindi
Profile
Lisa Lauricella ☎ CELL SMS

$14,88,000 - 51 Willis Avenue, स्योसेट Syosset, NY 11791|MLS # 966235

Property Description « हिन्दी Hindi »

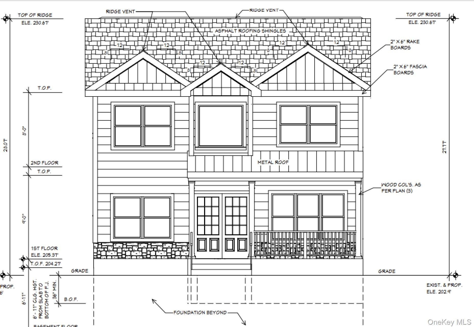
प्रमुख सयोसट बिल्डर गर्व से इस शानदार नए निर्माण कोलोनियल को प्रस्तुत करते हैं। यह सुन्दरता से डिज़ाइन किया गया 5-बेडरूम, 3-बाथ घर आज की जीवनशैली के लिए उपयुक्त एक उज्ज्वल, खुली योजना प्रदान करता है और प्रारंभिक गर्मियों, जून/जुलाई में तैयार होगा।

गौर्मेट ईट-इन किचन बिना किसी रुकावट के विशाल परिवार कक्ष में खुलेआम चलता है जिसमें एक फायरप्लेस है, जो रोजमर्रा की जिंदगी और मनोरंजन के लिए आदर्श सेटिंग बनाता है। हार्डवुड फर्श, केंद्रीय वातानुकूलन, और शानदार कारीगरी हर जगह प्रदर्शित होती है।

मुख्य स्तर पर एक अतिथि सूट या बेडरूम के साथ एक पूर्ण बाथरूम होता है जो विस्तारित परिवार या आगंतुकों के लिए लचीलापन प्रदान करता है। शानदार प्राइमरी सूट में एक वॉक-इन कोठरी और सुंदर रूप से सुसज्जित बाथरूम शामिल है। ध्यान आकर्षित करने वाली बढ़िया कारीगरी और उच्च गुणवत्ता वाली फिनिशिंग हर जगह को ऊँचा उठाती है।

अतिरिक्त विशेषताओं में एक आकर्षक सामने का बरामदा और एक डिटैच्ड गैराज शामिल हैं।

दुकानों और ट्रेन के निकट सुविधाजनक स्थान पर स्थित।

MLS #‎ 966235
विवरण
Details
5 शयनकक्ष, 3 स्नानघर, बर्तन साफ़ करने वाला, धोने की मशीन, गराज, वातानुकूलन, भूमि का आकार: 0.11 एकड़, आंतरिक वर्ग फुट : 2200 ft2, 204m2
DOM: 11 दिन
निर्माण वर्ष
Construction Year
2026
कर (प्रति वर्ष)
Taxes
(per year)
$12,423
ईंधन प्रकार
Fuel Type
प्राकृतिक गैस Gas
एयर कंडीशनिंग
Air
Conditioning
सेंट्रल एयर कंडीशनिंग Central Air
बेसमेंट Basementपूरा तहखाने Full basement
गराज
Garage Type
अलग गैरेज Detached
रेलवे स्टेशन
LIRR
Syosset रेलवे स्टेशन के लिए 0.3 मील
Cold Spring Harbor रेलवे स्टेशन के लिए 2.9 मील
房屋概況 Property Description « हिन्दी Hindi »« ENGLISH »

प्रमुख सयोसट बिल्डर गर्व से इस शानदार नए निर्माण कोलोनियल को प्रस्तुत करते हैं। यह सुन्दरता से डिज़ाइन किया गया 5-बेडरूम, 3-बाथ घर आज की जीवनशैली के लिए उपयुक्त एक उज्ज्वल, खुली योजना प्रदान करता है और प्रारंभिक गर्मियों, जून/जुलाई में तैयार होगा।

गौर्मेट ईट-इन किचन बिना किसी रुकावट के विशाल परिवार कक्ष में खुलेआम चलता है जिसमें एक फायरप्लेस है, जो रोजमर्रा की जिंदगी और मनोरंजन के लिए आदर्श सेटिंग बनाता है। हार्डवुड फर्श, केंद्रीय वातानुकूलन, और शानदार कारीगरी हर जगह प्रदर्शित होती है।

मुख्य स्तर पर एक अतिथि सूट या बेडरूम के साथ एक पूर्ण बाथरूम होता है जो विस्तारित परिवार या आगंतुकों के लिए लचीलापन प्रदान करता है। शानदार प्राइमरी सूट में एक वॉक-इन कोठरी और सुंदर रूप से सुसज्जित बाथरूम शामिल है। ध्यान आकर्षित करने वाली बढ़िया कारीगरी और उच्च गुणवत्ता वाली फिनिशिंग हर जगह को ऊँचा उठाती है।

अतिरिक्त विशेषताओं में एक आकर्षक सामने का बरामदा और एक डिटैच्ड गैराज शामिल हैं।

दुकानों और ट्रेन के निकट सुविधाजनक स्थान पर स्थित।

Premier Syosset builder proudly presents this stunning new construction Colonial. This beautifully designed 5-bedroom, 3-bath home offers a bright, open floor plan perfect for today’s lifestyle and will be ready in the early Summer, June/July.

The gourmet eat-in kitchen flows seamlessly into the spacious family room with a fireplace, creating the ideal setting for everyday living and entertaining. Hardwood floors, central air conditioning, and exceptional craftsmanship are showcased throughout.

A main-level guest suite or bedroom with a full bath provides flexibility for extended family or visitors. The luxurious primary suite features a walk-in closet and a beautifully appointed bath. Eye-catching millwork and high-end finishes elevate every space.

Additional highlights include a charming front porch and a detached garage.

Conveniently located near shops and the train.

This information is not verified for authenticity or accuracy and is not guaranteed and may not reflect all real estate activity in the market. Listing courtesy of Signature Premier Properties © 2026

Courtesy of Signature Premier Properties

公司: ‍516-496-0300

Other properties in this area




分享 Share
$14,88,000
मकान HOUSE
MLS # 966235
‎51 Willis Avenue
Syosset, NY 11791
5 शयनकक्ष, 3 स्नानघर, 2200ft2


Listing Agent(s):‎
Lisa Lauricella
Lic. #‍30LA1047940
☎ ‍516-297-1188
कार्यालय: ‍516-496-0300
请说您在SAMAKI.COM看此广告
请也给我MLS # 966235