| ID # | 960923 |
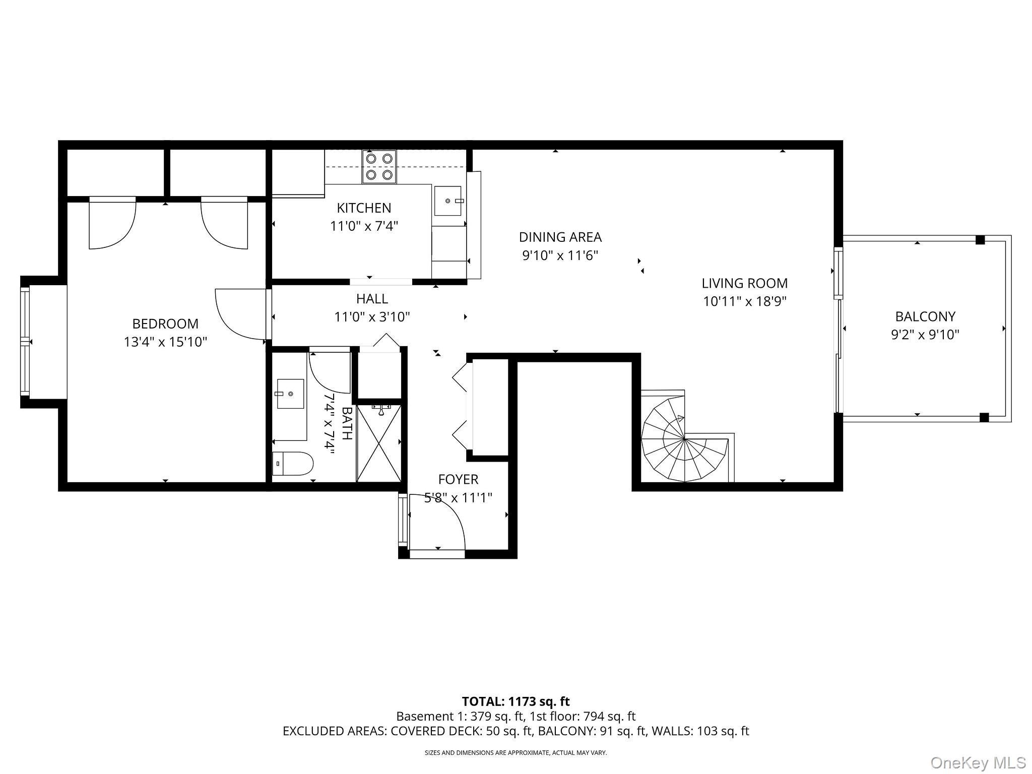
| विवरण | 1 शयनकक्ष, 1 स्नानघर, वातानुकूलन, भूमि का आकार: 0.01 एकड़, आंतरिक वर्ग फुट : 1173 ft2, 109m2 DOM: 1 दिन |
| निर्माण वर्ष | 1985 |
| रखरखाव शुल्क | $515 |
| कर (प्रति वर्ष) | $4,918 |
| ईंधन प्रकार | बिजली Electric |
| गर्मी का प्रकार | बिजली Electric |
| एयर कंडीशनिंग | दीवार एयर कंडीशनिंग Wall Unit AC |
| बेसमेंट | आंशिक तहखाने Partial |
![]() |
मिस्टी हिल्स टाउनहाउस में बेहतरीन स्थान पर स्थित इस खूबसूरती से बनाए गए एक-बेडरूम कोंडो में निर्विघ्न जीवन जिएं, जो पूरे समुदाय में सबसे सुविधाजनक स्थानों में से एक प्रस्तुत करता है। उज्ज्वल, खुला और प्राकृतिक रोशनी से भरा हुआ, इसका लेआउट आसान जीवन जीने और मनोरंजन के लिए सहजता से बहता है, जबकि विशाल बेडरूम और पर्याप्त भंडारण रोजमर्रा की सुविधा जोड़ते हैं। चाहे आप शुरुआत कर रहे हों, सिमट रहे हों, या निवेश कर रहे हों, यह एक प्रमुख स्थान में कम रखरखाव वाला जीवन है—अवसर दस्तक दे रहा है।
यह ज्यादा समय तक नहीं टिकेगा, इसलिए दौड़ें, चलें नहीं!
Read the English version or choose another language
This information is not verified for authenticity or accuracy and is not guaranteed and may not reflect all real estate activity in the market. Listing courtesy of William Raveis Real Estate © 2026







