| ID # | 953648 |
| विवरण | 2 शयनकक्ष, 2 स्नानघर, 1 आधा स्नानघर, बर्तन साफ़ करने वाला, धोने की मशीन, सुखाने वाला यंत्र, वातानुकूलन, आंतरिक वर्ग फुट : 1150 ft2, 107m2 DOM: 0 दिन |
| निर्माण वर्ष | 2023 |
| ईंधन प्रकार | बिजली Electric |
| गर्मी का प्रकार | बिजली Electric |
| एयर कंडीशनिंग | सेंट्रल एयर कंडीशनिंग Central Air |
| बेसमेंट | अनुपस्थित None |
![]() |
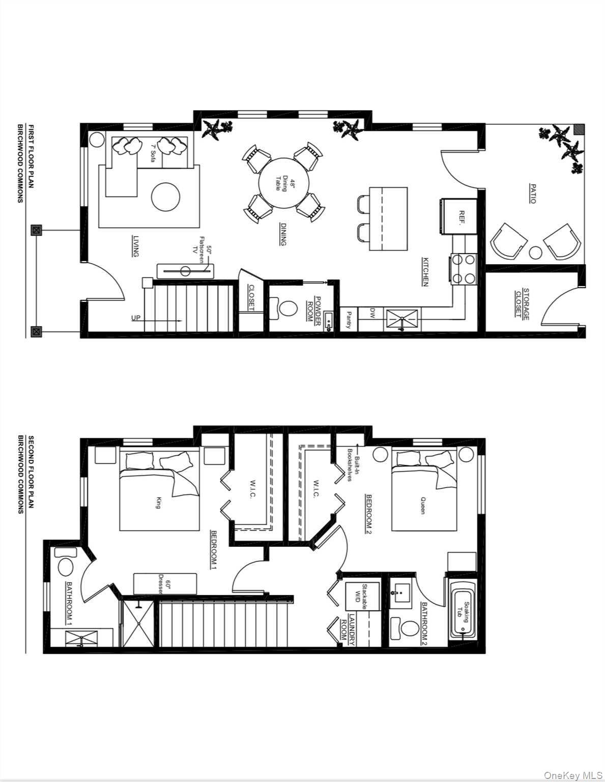
चार इमारतों में 20 दो-स Story आवास के साथ, प्रत्येक अपार्टमेंट में दो बेडरूम और दो और आधे बाथरूम होते हैं। यह मध्य-यूनिट टाउनहोम एक ओपन-कॉन्सेप्ट डिज़ाइन के साथ आता है, जो रहने, खाना खाने और रसोई की जगहों के बीच निर्बाध प्रवाह की अनुमति देता है। 1,150 वर्ग फुट में, हमारे.floor plans पर्याप्त स्थान प्रदान करते हैं जिसे विभिन्न फर्नीचर व्यवस्थाओं के लिए अनुकूलित किया गया है। कोई भी विवरण नजरअंदाज नहीं किया गया है क्योंकि हमारे घरों को स्टेनलेस स्टील उपकरणों और क्वार्ट्ज काउंटरटॉप्स जैसे शानदार स्पर्शों के साथ पूरा किया जाता है, साथ ही साथ सुविधाओं के साथ जो स्थान में आसानी और प्रभावशीलता जोड़ते हैं, जैसे कि अंतर्निर्मित माइक्रोवेव, संयुक्त कूड़ेदान और ऊँचे पैंट्री - सभी एक साफ, उज्ज्वल, फार्महाउस-प्रेरित सेटिंग में। दूसरी मंजिल के माध्यम से एक पासेज दो विस्तृत बेडरूम प्रकट करता है, प्रत्येक में वॉक-इन क्लोज़ेट और एनसुइट पूर्ण बाथरूम होता है। एक निर्धारित दूसरी मंजिल की लॉन्ड्री रूम में कपड़े धोना आसान हो जाता है, जो वॉशर/ड्रायर के साथ सुसज्जित है। बिर्चवुड की प्राकृतिक सुंदरता को प्रदर्शित करने के लिए, प्रत्येक अपार्टमेंट में एक निजी कवर वाला बाहरी पैटियो है जहां निवासी आराम कर सकते हैं और अनप्लग कर सकते हैं। टाकोनिक स्टेट Parkway तक पहुँचने में पांच मिनट। आर्लिंगटन स्कूल। हडसन वैली के दिल में समकालीन ग्रामीण शैली का आनंद लें, जबकि प्रकृति, खाने की जगहों, दुकानों और बहुत कुछ तक आसान पहुँच हो। आवेदन जानकारी के लिए www.BirchwoodCommonsNY.com पर जाएँ।
With 20 two-story residencies across four buildings, each apartment contains two bedrooms and two and a half bathrooms. This mid-unit townhome boasts an open-concept design, allowing for a seamless flow between the living, dining, and kitchen spaces. At 1,150 square feet, our floor plans provide ample spaced is designed to accommodate various furniture arrangements for optimal personalization. No detail has been overlooked as our homes are finished with elegant touches like stainless steel appliances and quartz countertops, as well as features that add ease and efficiency to the space, such as built-in microwaves, integrated trash pullouts, and tall pantries - all in a clean, bright, farmhouse-inspired setting. A pass through the second floor reveals two spacious bedrooms, each equipped with a walk-in closet and ensuite full bathrooms. A designated second-floor laundry room makes doing laundry a breeze, equipped with washer/dryer. To put the natural beauty of Birchwood on display, each apartment features a private covered outdoor patio where residents can unwind and unplug. Five minutes to the Taconic State Pkwy. Arlington Schools. Enjoy the contemporary country lifestyle in the heart of the Hudson Valley while having easy access to nature, eateries, shops, and more. Find application information at www.BirchwoodCommonsNY.com
This information is not verified for authenticity or accuracy and is not guaranteed and may not reflect all real estate activity in the market. Listing courtesy of KW MidHudson © 2026



