| MLS # | 974462 |
| विवरण | 1 शयनकक्ष, 1 स्नानघर, गराज, वातानुकूलन, आंतरिक वर्ग फुट : 594 ft2, 55m2 DOM: 0 दिन |
| निर्माण वर्ष | 1959 |
| रखरखाव शुल्क | $772 |
| गर्मी का प्रकार | गरम हवा Hot air |
| एयर कंडीशनिंग | दीवार एयर कंडीशनिंग Wall Unit AC |
| बेसमेंट | अनुपस्थित None |
| बस | बस Q66, Q72 के लिए 1 मिनट |
| बस Q49 के लिए 5 मिनट | |
| बस Q23, QM3 के लिए 7 मिनट | |
| बस Q19 के लिए 9 मिनट | |
| भूमिगत रेल | मेट्रो 7 के लिए 10 मिनट |
| रेलवे स्टेशन | Mets-Willets Point रेलवे स्टेशन के लिए 1.6 मील |
| Woodside रेलवे स्टेशन के लिए 1.7 मील | |
![]() |
क्या आप एक किफायती, विशाल और शांत एक-बेडरूम की तलाश में हैं? यह देखने के लिए एक बेहतरीन विकल्प है।
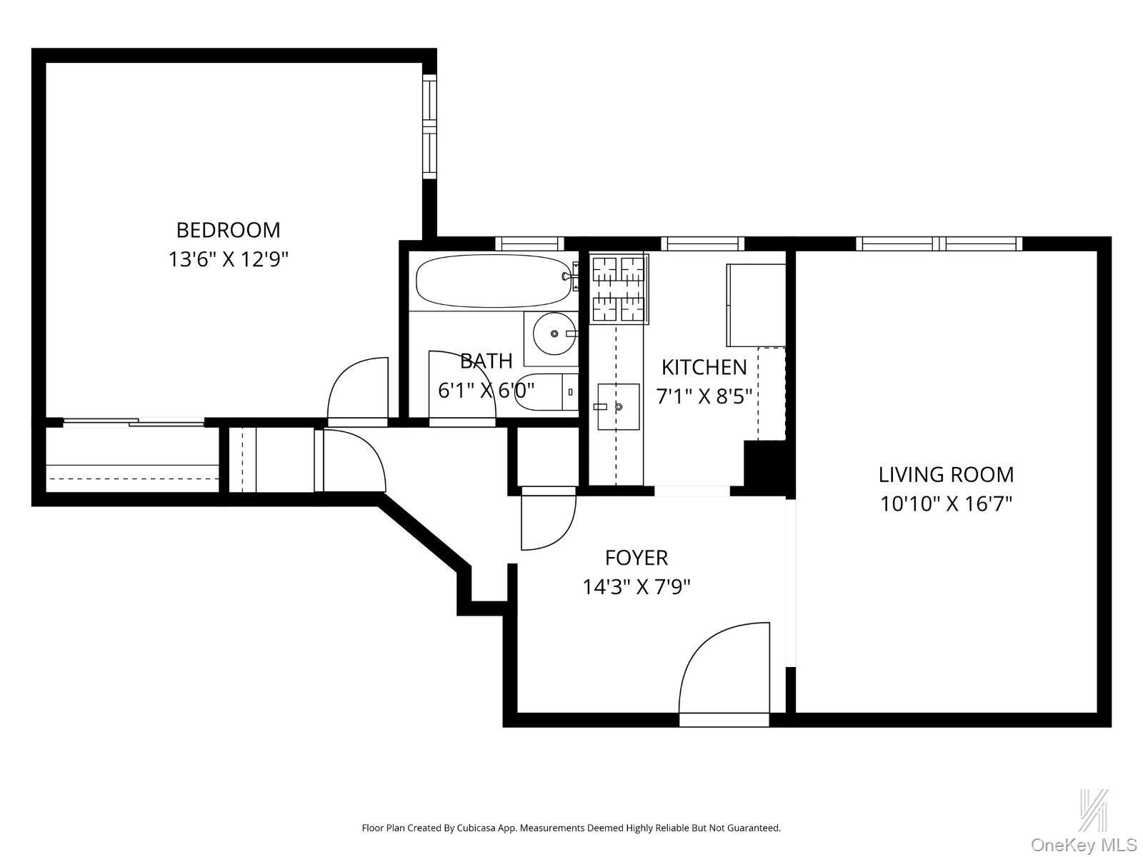
यह अपार्टमेंट एक अच्छी तरह से रखरखाव किए गए सह-ऑप के दूसरे तल (लॉबी के ठीक ऊपर) पर स्थित है, जो वित्तीय रूप से मजबूत है, और इसका लेआउट दोनों व्यावहारिक और रहने में आसान है। यहां लिविंग एरिया और बेडरूम के बीच स्पष्ट विभाजन है, जिससे जगह अपेक्षा से बड़ी लगती है।
आपका स्वागत एक उचित फोयर में होता है—जो खरीदारों को हमेशा पसंद आता है—जो आसानी से एक होम ऑफिस, डाइनिंग एरिया या बस एक अच्छी तरह से परिभाषित एंट्री के रूप में डबल कर सकता है। लिविंग रूम अच्छे अनुपात में और लचीला है, जिसमें एक आरामदायक बैठने के क्षेत्र और डाइनिंग के लिए पर्याप्त जगह है, जिससे वह तंग नहीं महसूस होता। किचन फोयर के ठीक पास है, जो मुख्य लिविंग स्पेस से दूर है, जिससे सब कुछ व्यवस्थित रखने में मदद मिलती है।
बेडरूम अलग सेट किया गया है और generous आकार का है, जो आसानी से एक किंग-साइज़ बिस्तर और एक बड़े डबल क्लॉज़ेट के लिए जगह देता है। घर के चारों ओर कई विचारशील रूप से रखे गए क्लॉज़ेट्स हैं, जो घर की कार्यक्षमता में जोड़ते हैं। पूरे अपार्टमेंट में खूबसूरत पार्केट फ्लोर हैं जो गर्मजोशी और चरित्र जोड़ते हैं।
सह-ऑप पार्क जैसे मैदान पर स्थित है और कई बाहरी बैठे क्षेत्रों की पेशकश करता है, जो एक शांत वातावरण बनाता है जो मिलना मुश्किल है। निवासी वेटलिस्टेड गैरेज, अच्छी तरह से रखरखाव की गई लॉन्ड्री सुविधाओं और एक लिव-इन सुपर के साथ एक ध्यान देने वाला स्टाफ का आनंद लेते हैं।
ट्रेन सिर्फ तीन ब्लॉक दूर है, जिससे यात्रा करना आसान हो जाता है। आप 34वें एवेन्यू के साथ शॉपिंग, रेस्तरां और पासेयो पार्क से एक ब्लॉक की दूरी पर हैं, जो सुबह की दौड़, साइकिल चलाने और एक अधिक ओपन, पैदल यात्री के अनुकूल अनुभव के लिए पड़ोस का पसंदीदा है।
$994.87 की रखरखाव में बिजली, गैस, गर्मी, पानी और कर शामिल हैं। 20% डाउन पेमेंट और बोर्ड की मंजूरी आवश्यक है।
Have you been searching for an affordable, spacious, and quiet one-bedroom? This is one worth seeing.
Located on what is effectively the second floor (just above the lobby) of a well-maintained co-op in strong financial standing, the apartment offers a layout that’s both practical and easy to live in. There’s a clear separation between the living area and the bedroom, which makes the space feel larger than expected.
You’re welcomed by a proper foyer—something buyers always appreciate—which can easily double as a home office, dining area, or simply a well-defined entry. The living room is well-proportioned and flexible, with enough room for both a comfortable seating area and dining without feeling tight. The kitchen sits just off the foyer, tucked away from the main living space, helping keep everything organized.
The bedroom is set apart and generously sized, easily accommodating a king-sized bed with room to spare, along with an oversized double closet. Multiple closets are thoughtfully placed throughout, adding to the functionality of the home. Throughout the apartment, you’ll find beautiful parquet floors that add warmth and character.
The co-op is set on park-like grounds and offers multiple outdoor sitting areas, creating a peaceful setting that’s hard to come by. Residents enjoy a wait-listed garage, well-maintained laundry facilities, and an attentive staff with a live-in super.
The train is just three blocks away, making commuting simple. You’re a block away from shopping, restaurants, and Paseo Park along 34th Avenue, a neighborhood favorite for morning runs, bike rides, and a more open, pedestrian-friendly feel.
The maintenance of $772.47 includes electricity, gas, heat, water, and taxes. A 20% down payment and board approval are required.
This information is not verified for authenticity or accuracy and is not guaranteed and may not reflect all real estate activity in the market. Listing courtesy of Compass Greater NY LLC © 2026







